Fester Projektpreis. Schnelle Lieferung. 100% Zufriedenheitsgarantie.

Produkte

Produkte

Unsere Produkte beschreiben die Innen- und Außengeometrie, Abmessungen und Semantik digitalisierter Objekte und ermöglichen es den Nutzern, über den Status und Änderungen informiert zu sein.

  • As-built-Dokumentation
    • 2D CAD-Pläne
      • Grundrisse
      • Deckenpläne, Beleuchtungs- & Rauchmelderpläne
      • Dachplan, Dachbodenkarten
      • Ansichten
      • Schnittzeichnungen
    • 3D-Vektordaten
    • topografische Vermessung
  • Digitale Zwillinge und BIM-Modelle (statisch und dynamisch)
  • Rohdaten und nachbearbeitete Daten
    • Messsensorendaten (Stufe 1 und 2)
    • Punktwolken (roh, verarbeitet, segmentiert)
  • 3D-Modelle
    • digitale Orthophoto-Modelle (DOM)
    • digitale Oberflächenmodelle (DSM), digitale Geländemodelle (DTM)
  • Analytik und Semantik
    • Objektextraktion, z.B. Gebäude, Bäume, Solarpaneele
    • Landbedeckungs- und Vegetationskarten
  • Messungen, dimensional Analysen und Qualitätskontrollberichte
  • Thematische Karten
    • topografische und Höhenlinienkarten, Solarpotenzial, Landbedeckung, Vegetation, Überschwemmungen
  • 360°-Virtuelle Rundgänge, VR-Modelle, Panoramabilder
  • Hang- und Wasserscheidenmodelle
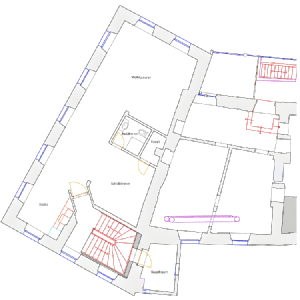
2D-Plan

3D-Mesh

3D-Modell

BIM-Modell

Höhenlinienkarte

Kulturerbe

DEM

DEM-Klassifikation

Datenanalyse

Datenkombination

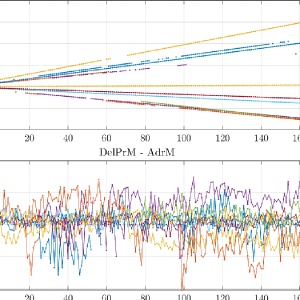
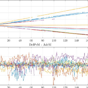
Deformationsanalyse

Karte

Mesh

Orthofoto

Punktwolke

Punktwolkensegmentierung

Profil

Immobilienfotografie

Hanganalyse

Strukturanalyse

Virtueller Rundgang

Kontakt

Wir messen, modellieren und visualisieren räumliche Objekte in allen Dimensionen!

Besprechen Sie Ihre spezifischen Bedürfnisse und sehen Sie, wie unsere geospatialen Lösungen Ihr Ingenieurprojekt von Anfang bis Ende optimieren können.

Wenn Sie Fragen zu unseren Dienstleistungen oder Anfragen zu abgeschlossenen Projekten haben, freuen wir uns, von Ihnen zu hören.

Vereinbaren Sie einen Termin!

Kontakt